ZENLINEAUTOMATIC

El sistema ZENLINE AUTOMÁTIC aporta el control suave para la apertura, cierre y bloqueo de las hojas. En 130 mm aloja un motor controlado por microprocesador y mediante APP o botón de apertura desliza silenciosamente las hojas. Recomendado a partir de 400kg/hoja.

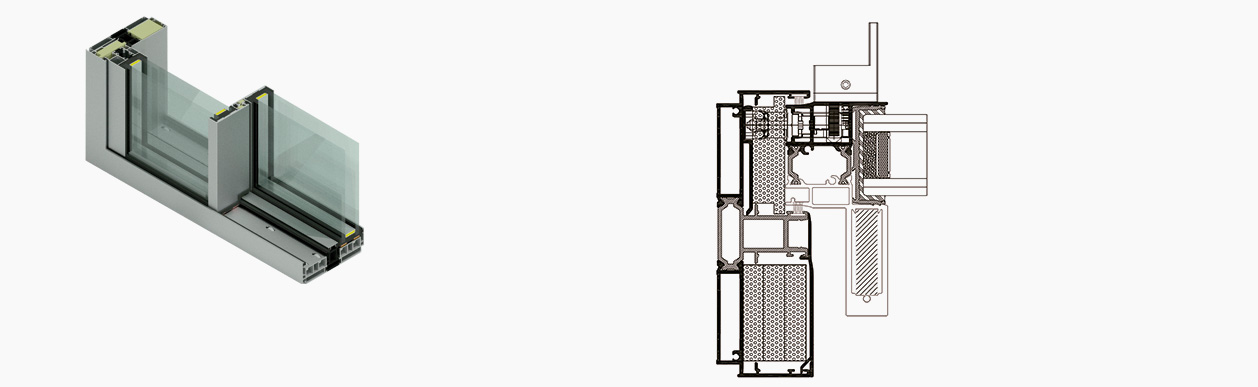
Perfil


Características


Peso máx hoja: 800kg; 200Kg/metro lineal.
Acristalamiento: Hueco de hoja hasta 34 mm.
Sección Vista de hoja: 37 mm.
Sección vista de cruce: 19 mm.

Ensayos y valores


Transmitancia térmica
desde 0,7 W/m2k

Permeabilidad al aire
Clase 3

Estanqueidad al agua
Clase 7A

Resistencia al viento
Clase C5

Aislamiento acústico
30 dB*

*Dependiendo del vidrio